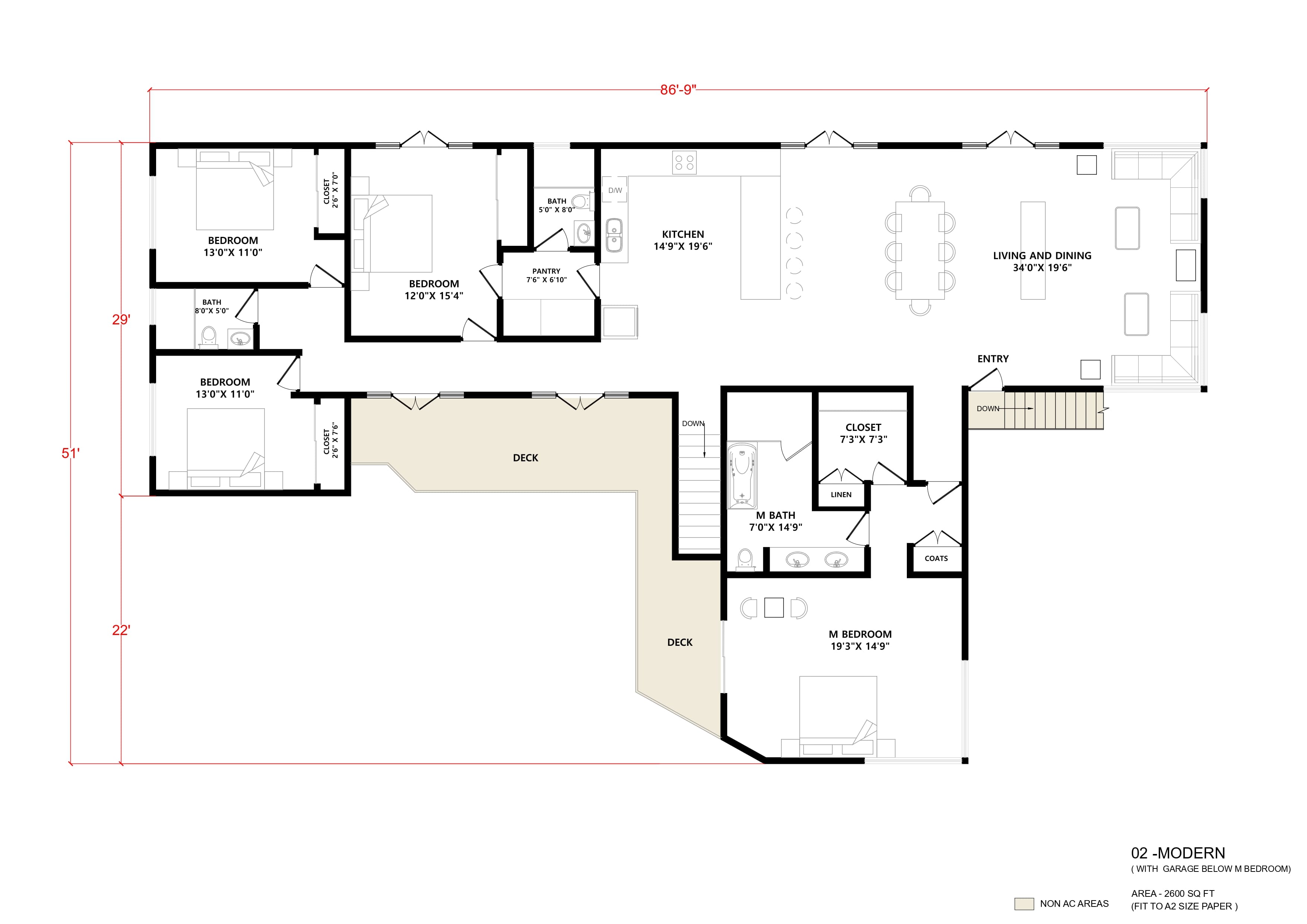
Modern 2600 sq ft


Sophisticated Modern Living
Thoughtfully crafted for a hillside setting, this stunning 2600 sq ft modern home pairs sleek architecture with versatile living spaces. A lower-level garage with private entry makes it ideal for adding an ADU or guest suite, while the main level showcases airy, light-filled interiors designed for comfort and entertaining.
Inside, four bedrooms include a spacious master suite with a spa-inspired bath and direct access to a tranquil private courtyard — also accessible from the main hallway for easy flow. The heart of the home features a stylish European kitchen with casual dining space, complemented by a formal dining room for gatherings and celebrations. A generous living room opens through expansive sliding or French doors to the primary backyard, blending indoor and outdoor living.
With its smart layout, elegant finishes, and ability to incorporate an ADU, this home offers the perfect balance of flexibility, privacy, and contemporary sophistication — an exceptional retreat tailored to modern hillside living.
Optional Finishes to Suit Your Style
Tailor this home to your tastes with thoughtfully curated finish packages:
- High-Quality Standard Package: Durable quartz countertops, shaker cabinetry, energy-efficient stainless appliances, luxury vinyl plank flooring, and classic chrome fixtures.
- Midgrade Upgrade Package: Granite or premium quartz counters, soft-close custom cabinets, upgraded tile backsplash, engineered hardwood flooring, and matte black or brushed nickel hardware.
- Luxury Selection Package: Natural stone countertops, bespoke cabinetry, chef-grade appliances, designer lighting, wide-plank hardwood or marble floors, and statement fixtures in polished brass or bronze.
Whether you prefer a relaxed everyday look or an upscale designer finish, these selections enhance the home’s charm while fitting your lifestyle and budget.
Built with Firesafe™ Construction for Unmatched Safety & Strength
This home is built using Metricon Homes’ Firesafe™ approach—engineered to deliver enhanced protection and resilience. Featuring non-combustible materials such as steel framing, Class A roofing, concrete or fire-resistant siding, and tempered glass windows, it’s designed to resist fire, embers, and extreme weather risks. From ember-resistant vents and enclosed eaves to advanced fire detection and sprinkler systems, every detail is in place to help safeguard your family and investment.
Speak to our Firesafe Home specialists
© 2025 Metricon Homes. All rights reserved.